GF1530-2000W ОПТОВОЛОКОННЫЙ ЛАЗЕРНЫЙ СТАНОК
                            
                            
                            
                            
                            
                            
                                
                                
                                
                                
                                
                                
                                
                                
                                
                                
                                
                                Описание товара
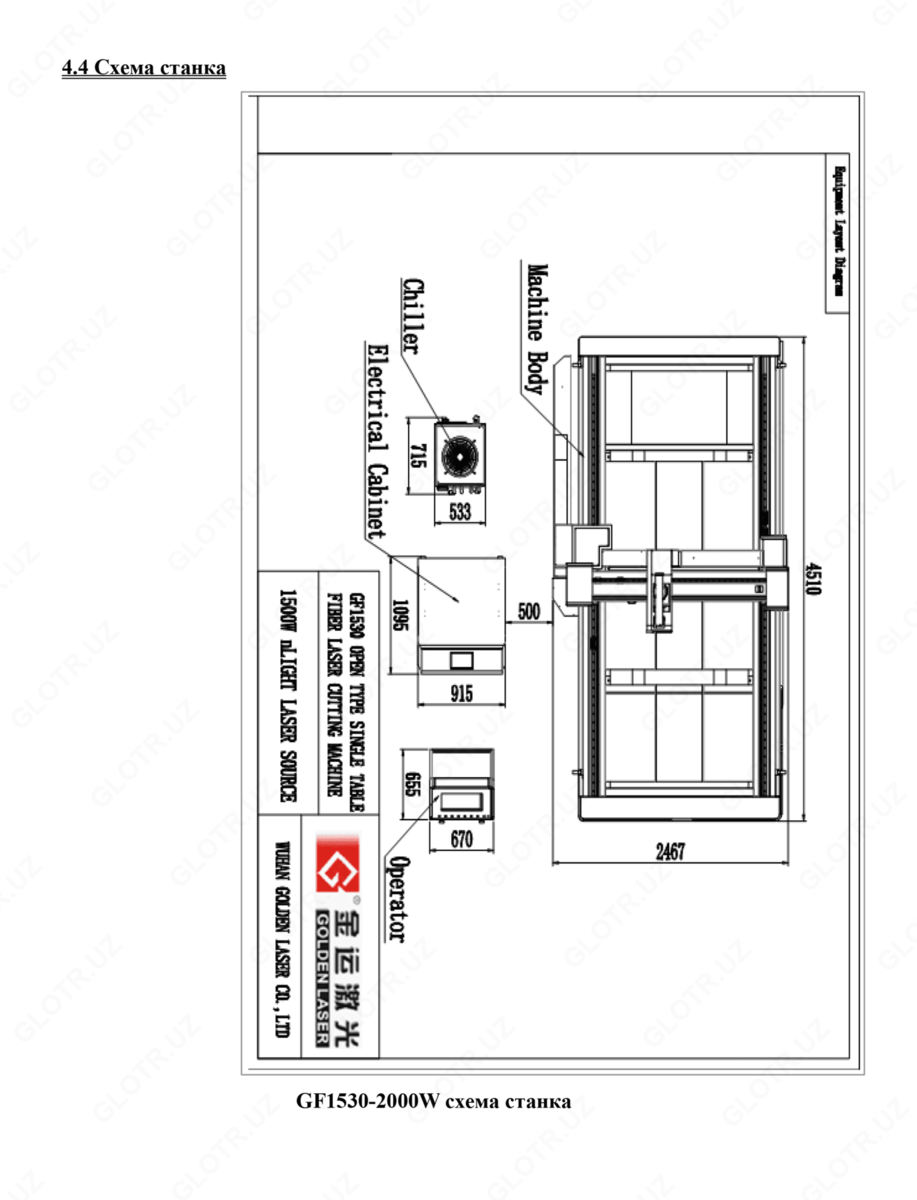
GF-1530  ОПТОВОЛОКОННЫЙ  ЛАЗЕРНЫЙ  СТАНОК 
ЛЯ РЕЗКИ ЛИСТОВОГО МЕТАЛЛА
Мощность – 2000W 
Лазерный источник – Raycus
Режущая головка– Raytools с автофокусом
Рабочая зона – 1500mm x 3000mm
Программное обеспечение: Cypcut
Сервомотор –  Yaskawa 
Система  позиционирования  –Шестерня  рейка
KH/Направляющие Hiwin
Система охлаждения  - Водяной чиллер
Система смазки – Система автоматической смазки
Беспроводной пульт дистанционного управления
   Одномодульный непрерывный волоконный лазер третьего поколения, разработанный Raycus, имеет мощность от 250 до 2000 Вт. Лазерный источник нового поколения обладает более высокой эффективностью фотоэлектрического преобразования (> 30%), лучшим и более стабильным качеством луча и более мощным анти-отражением. Возможностьвнедрения оптимизированной волоконно-оптической системы передачи второго поколения для обеспечения более стабильного и точного эффекта резки при резке толстого листа. Этот лазерный источник подходит для различных областей применения: резка, сварка, сверление, обработка медицинских устройств и т. д., Срезанный лист узкий, а сечение реза яркое, что очевидно по сравнению с другими аналогичными лазерами на рынке. Одномодульный непрерывный волоконный лазер серии полностью разработан и произведен Raycus. Raycus имеет эффективную и профессиональную научно-производственную команду. Разработанный одномодульный непрерывный волоконный лазер может не только максимально удовлетворить потребности клиентов и может предоставить персонализированные профессиональные настройки.























Показать все
Скрыть
Документы
Гарантия
Гарантийный срок эксплуатации прибора составляет 24 месяца с момента его ввода в эксплуатацию, при условии соблюдения потребителем правил эксплуатации, транспортировки, хранения и монтажа, установленных в руководстве по эксплуатации и в соответствии с требованиями ГОСТ 2405–88.
Срок хранения прибора с сохранением гарантийных обязательств — 12 месяцев с даты изготовления.
Отзывы
У данного товара пока нет отзывов. Станьте первым, кто поделится своим мнением и поможет другим сделать выбор.
20 отзывов
Артикул
Бренд
UzkipВ наличии
ГОСТ
2405-88ТУ
4212-114-64115539-2014Срок доставки
2-3 дняПериодичность поверки
2 годаС этим товаром смотрят
                    Станок для лазерной резки труб P2060 P3080 Golden Laser
100 000 000 сум
                    Лазерный станок для резки листов со сменным столом GF-1540JH
100 000 000 сум
                    Лазерный станок для резки металла SF3015G
100 000 000 сум
                    Лазерный станок для резки листов со сменным столом GF-1540JH
100 000 000 сум
                    Лазерный станок для резки металла SF3015G
100 000 000 сум
                    Лазерный станок для резки металла SF3015G
100 000 000 сум
Ранее вы смотрели
                Тягонапоромер, напоромер, манометр низкого давления МП 3 У -16 мPa
                GF1530-2000W ОПТОВОЛОКОННЫЙ ЛАЗЕРНЫЙ СТАНОК
                МШС-2.5М Метрошток
                АТ01m — виброкалибратор для калибровки и тестовой проверки виброметра
                НЕПТУН-3 — переносное испытательное устройство для проверки сложных защит
                ДН-100э — делитель высокого напряжения 1-100 кВ (эталонный, 0,5%)
                T-3000 — испытательный прибор для проверки первичного и вторичного оборудования
                Орион-КИ — устройство контроля изоляции газовой защиты
                HM110-PNA — датчик влажности
                Когти Лазы монтерские универсальные по бетону ЛУ
Похожие категории